





















































Images coming soon
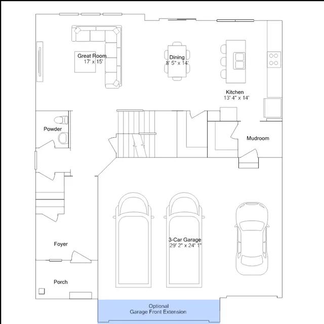
On the first floor of this new two-story home is a modern layout shared among a spacious Great Room made for entertainment, a dining area for intimate meals and a fully equipped kitchen. The top floor hosts a versatile loft for additional living space and all four bedrooms, including the private owners suite with an adjoining bathroom and walk-in closet. Rounding out the home is an enviable three-car garage.
Stay informed with Livabl updates on new community details and available inventory.