hero-image-0

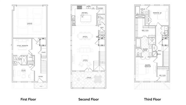
The Morningside Plan

Memorial Green
Not Available
Not available
Pricing unavailable
3
3
1
From 2,542
unit-banner-imageunit-banner-imageunit-banner-image
The Morningside Plan details

Contact sales center

Get additional information including price lists and floor plans.

Interested? Receive updates

Stay informed with Livabl updates on new community details and available inventory.