

































































Get additional information including price lists and floor plans.
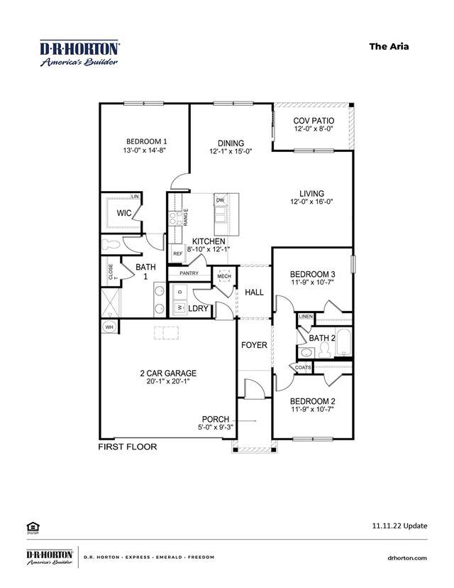
The Aria is a thoughtfully designed home with three bedrooms and two bathrooms all on one level. This open concept plan is perfect for entertaining and making lasting memories. The kitchen island looks out over the spacious family room and is a great place for easy food preparation. The split bedroom design places the owner's suite separate from the secondary bedrooms. The owner's suite features a walk-in closet and spacious bath with a double vanity. All of our homes include D.R. Horton's Home is Connected package, an industry leading suite of smart home products that keeps homeowners connected with the people and place they value the most. The technology allows homeowners to monitor and control their home from the couch or across the globe. *The photos you see here are for illustration purposes only, interior and exterior features, options, colors ...
Stay informed with Livabl updates on new community details and available inventory.