

































































































































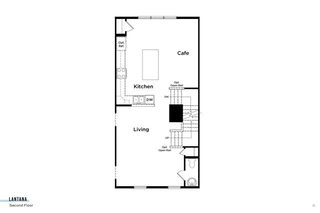
Spacious 3 Level Townhome with 2-Car Rear Garage and up to 1,881 Sq. Ft.! Adjacent the front entry is a spacious flex space with the option to choose either a private study or a 4th bedroom and full bathroom. The 2nd floor offers an expansive living room and a rear kitchen with the option of a chef's kitchen and large island that overlooks to the cafe area. The 3rd floor boasts a primary suite with a generous walk-in closet and en suite bathroom with dual sink vanity, and step-in shower, 2 secondary bedrooms, full bathroom and a conveniently located laundry area.
Stay informed with Livabl updates on new community details and available inventory.