New Homes for Sale
Articles
Professionals
Log in
Sign up
Photos 11
Videos 0
Map
Interactive floor plan 0
Virtual 0
Kendall Plan
By
Pulte Homes
|
Legacy Farms
Community
Available homes
Get updates
Save
Request info
Request info
Community
Available homes
Request info
Get updates
Save
Request info
Legacy Farms
Get updates
Request info
Sold
Sold
3
2
1
From 2,973
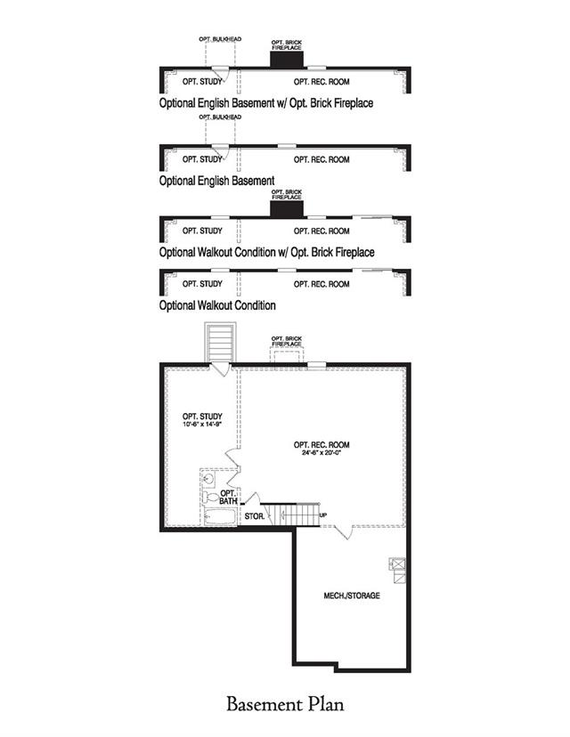
Kendall Plan details
Address:
Hopkinton, MA 01748
Plan type:
Detached Two+ Story
Beds:
3
Full baths:
2
Half baths:
1
SqFt:
From 2,973
Ownership:
Fee simple
Interior size:
From 2,973 SqFt
Lot pricing included:
Yes
Kendall Plan is now sold.