























































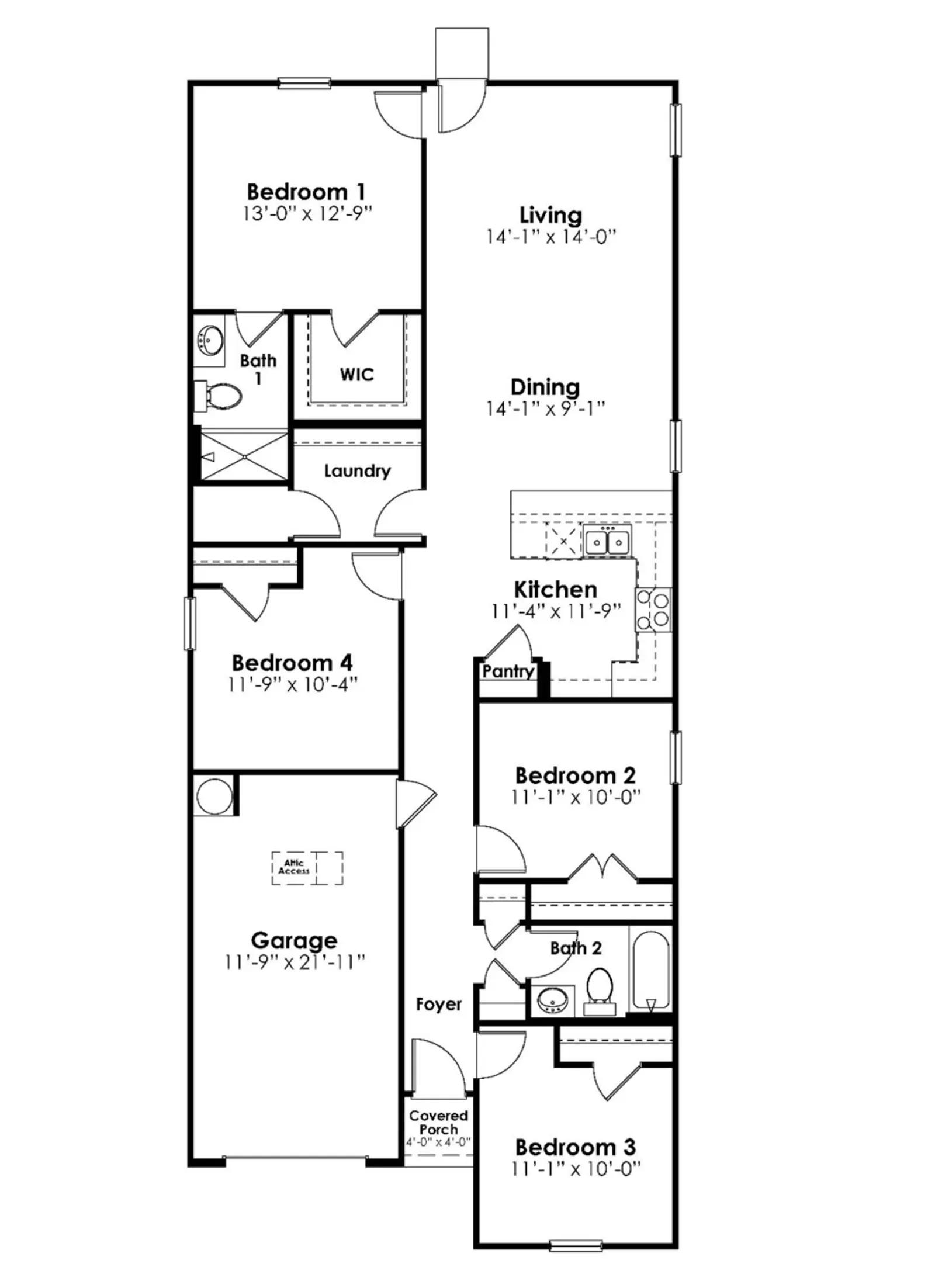
The Cameron plan in Hunter's Branch offers a harmonious blend of functionality and comfort. It features four bedrooms and two bathrooms, all conveniently located on one level. Its open floor design seamlessly integrates the kitchen, dining, and living areas. Nestled at the rear of the house, the primary bedroom is private and separate from the other bedrooms. This layout is idea for those seeking practicality and relaxation in their living space. All of our homes include D.R. Horton's Home is Connected package, an industry leading suite of smart home products that keeps homeowners connected with the people and place they value the most. The technology allows homeowners to monitor and control their home from the couch or across the globe. *The photos you see here are for illustration purposes only, interior and exterior features, options, colors and se...
Stay informed with Livabl updates on new community details and available inventory.