




























































































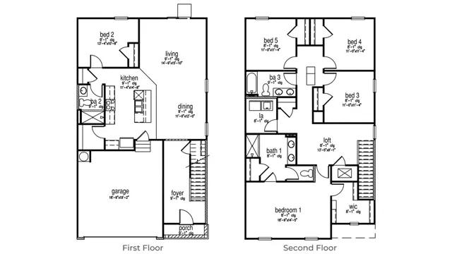
Welcome to the Robie in Hunter's Branch! The Robie floorplan offers ample living space with 5 bedrooms, 3 bathrooms, and a 2-car garage. A bedroom, full bathroom, and open main living areas finish the first floor. On the second floor, you will find the remaining 4 bedrooms, including the primary, and 2 bathrooms. This plan is function, versatile, and welcoming. For these reasons and more, the Robie is one of our most popular plans! Pop out to Hunter's Branch or give us a call to learn more. Living in Hunter's Branch conveniently places you right down the road from Fort Jackson and just a short drive to Downtown Columbia, Sumter, and Shaw AFB. Not to mention the impressive amenities that you would have access to, including a pool, cabana, and playground. *The photos you see here are for illustration purposes only, interior, and exterior features, opt...
Stay informed with Livabl updates on new community details and available inventory.