
































Get additional information including price lists and floor plans.
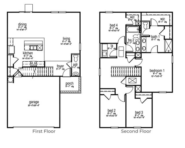
Welcome to the Aisle floorplan in Hunter's Branch! The Aisle features a completely open concept first floor with plenty of room for entertaining. The kitchen boasts a versatile floating island, lots of cabinet space, stunning granite countertops, and a spacious pantry. On the second floor, you can find the impressive primary bedroom, laundry room, and three additional bedrooms. Come check out our Aisle Model Home in Hunter's Branch to get inspiration for home design! All of our homes include D.R. Horton's Home is Connected package, an industry leading suite of smart home products that keeps homeowners connected with the people and place they value the most. The technology allows homeowners to monitor and control their home from the couch or across the globe. *Please note the photos you see here are for illustration purposes only, interior and exte...
Stay informed with Livabl updates on new community details and available inventory.