












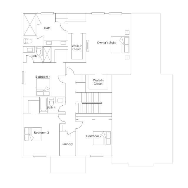
The only two-story home available in the collection features a living and dining room located at the front of the first level, while a hallway leads to the family room and kitchen arranged in an open-concept design. A first-floor bedroom provides an ideal space for overnight guests or a home office, while the remaining four bedrooms occupy the second floor.