hero-image-0
hero-image-1

13219 SW 270 TER

By

D.R. Horton

   |   

Rosecrest

Rosecrest
Sold
Sold
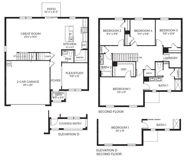
4
2
1
2,470
13219 SW 270 TER details
13219 SW 270 TER is now sold.
Check out available nearby homes below.