hero-image-0
hero-image-1

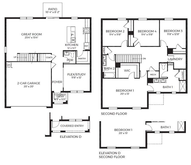
13213 SW 271 TER

By

D.R. Horton

   |   

Rosecrest

Rosecrest
Sold
Sold
4
2
1
2,470
13213 SW 271 TER details
13213 SW 271 TER is now sold.
Check out available nearby homes below.