hero-image-0
hero-image-1

2381 Se 14 St

By

D.R. Horton

   |   

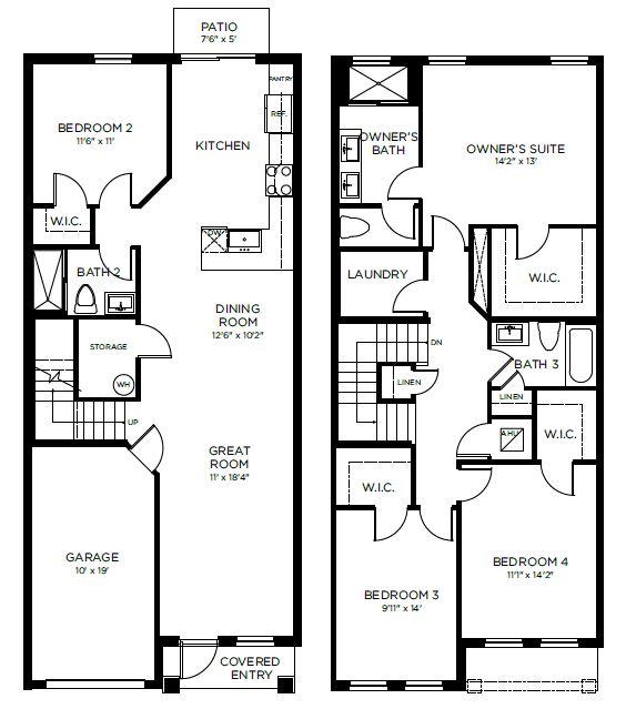
Palm Breeze

Palm Breeze
Sold
Sold
4
3
1,926
2381 Se 14 St details
unit-banner-image
unit-banner-image
unit-banner-image
2381 Se 14 St is now sold.
Check out available nearby townhomes below.