






































































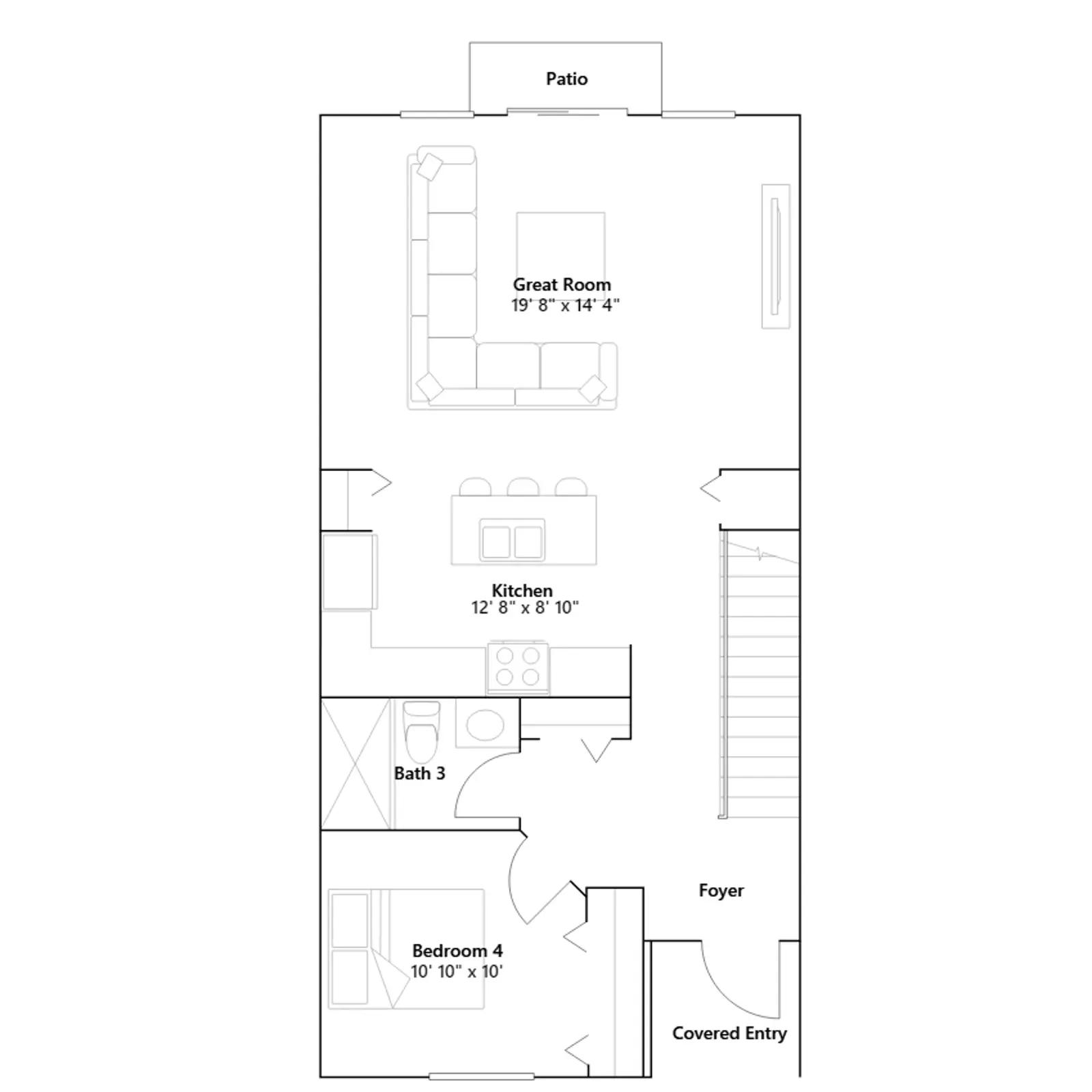
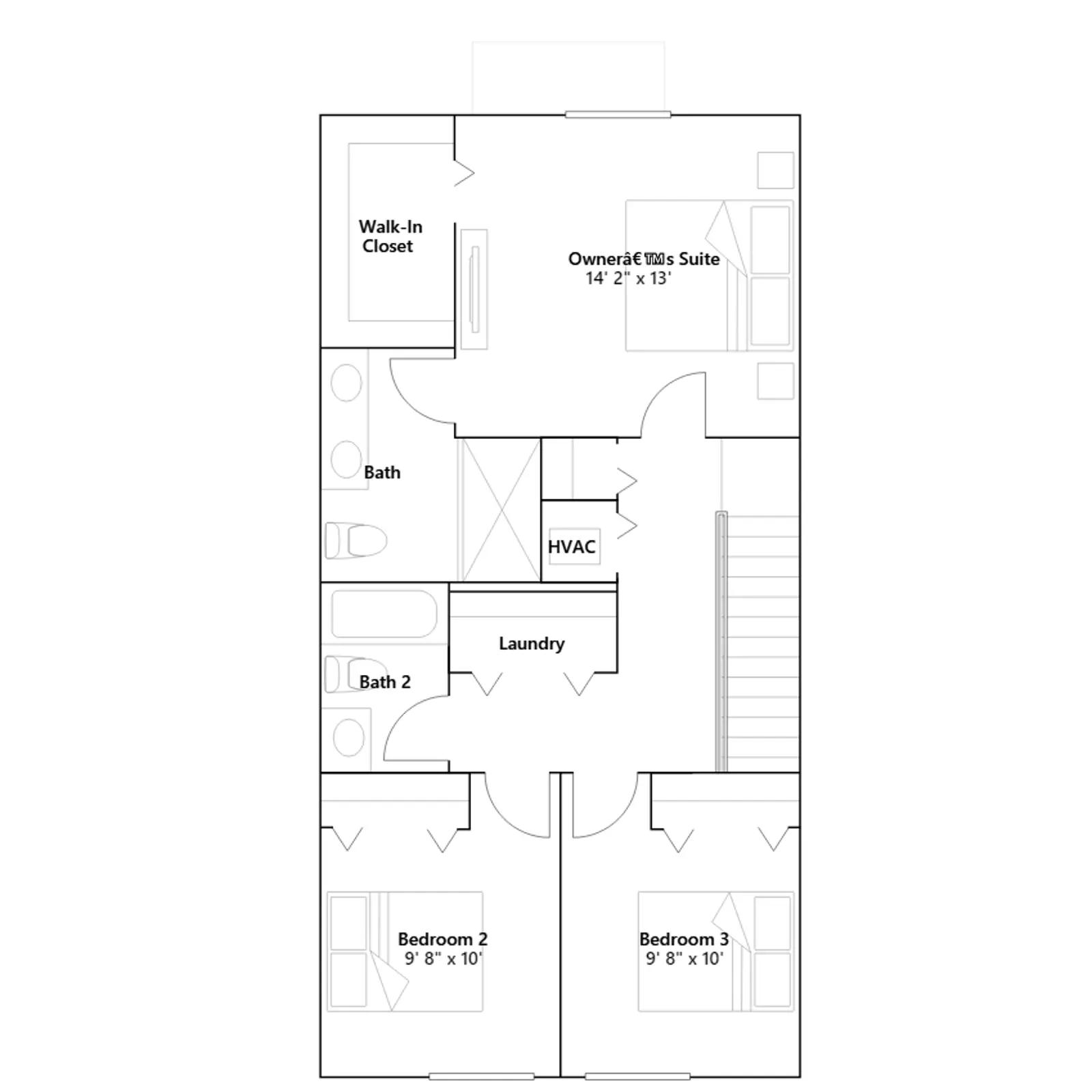
The first floor of this two-story home shares an open layout between the kitchen and Great Room for easy entertaining, along withaccess to a patio for outdoor relaxation. A secondary bedroom and full-sized bathroom are by the foyer, perfect for a home office or overnight guests. Upstairs is a luxe owner's suite with an en-suite bathroom and a spacious walk-in closet, as well as two additional secondary bedrooms.
Stay informed with Livabl updates on new community details and available inventory.