















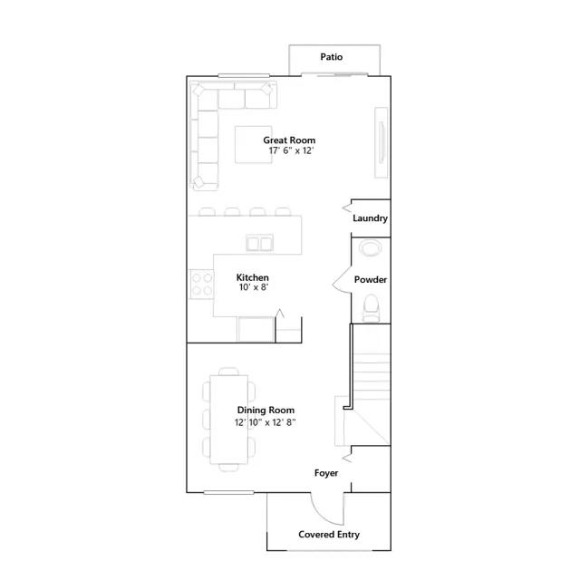
This two-story townhome hosts the open floorplan Great Room, kitchen and dining room conveniently on the first level of the home, with a simple transition between each room. Nearby are glass sliders to extend the Great Room out into the patio and backyard, perfect for indoor-outdoor activities. All three bedrooms are located upstairs on the second floor, including the owners suite with a full bathroom.
Stay informed with Livabl updates on new community details and available inventory.