









































































Images coming soon
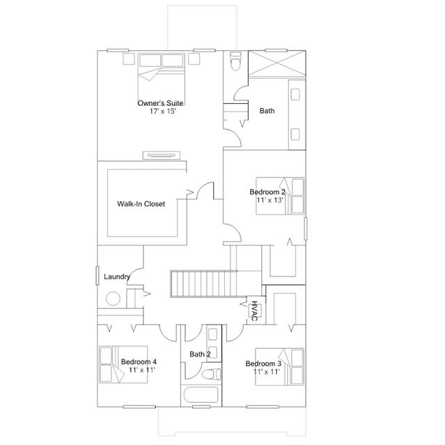
This new two-story home exudes modern elegance with plenty of space to grow and entertain. On the first floor is a formal living room ideal for hosting guests, which is complemented by a casual Great Room and a chef-ready kitchen. Nearby is a versatile bedroom for overnight visitors, while tucked upstairs are the remaining secondary bedrooms and a tranquil owners suite with an attached bathroom.
Stay informed with Livabl updates on new community details and available inventory.