





















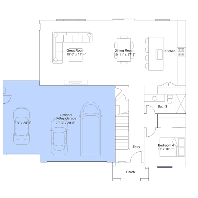
The first level of this two-story home is host to the Great Room, kitchen and dining room, arranged among a convenient and contemporary open floorplan. A secondary bedroom off the entry is great as a home office or for overnight guests. A loft and three bedrooms occupy the top level, including the expansive owners suite with a spacious walk-in closet and private bathroom.