

























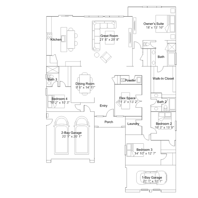
The Great Room, kitchen and dining room share an open floorplan in this single-level home, making multitasking and entertaining simple. A secondary bedroom off the entry features an en-suite bathroom, making it great for overnight guests, while three more bedrooms and a versatile flex room are located off a hallway on the other side of the home.