New Homes for Sale
Articles
Professionals
Log in
Sign up
Photos 13
Videos 0
Map
Interactive floor plan 0
Virtual 0
Valeri Farmhouse Plan
By
Toll Brothers
   |  Â
Regency at Holmdel
Community
Available homes
Get updates
Save
Request info
Request info
Community
Available homes
Request info
Get updates
Save
Request info
Regency at Holmdel
Get updates
Request info
Sold
Sold
3
2
1
From 3,735
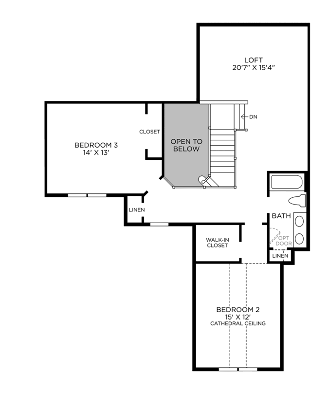
Valeri Farmhouse Plan details
Address:
Â
Holmdel, NJ 07733
Plan type:
Â
Two+ Story
Beds:
Â
3
Full baths:
Â
2
Half baths:
Â
1
SqFt:
Â
From 3,735
Ownership:
Â
Condominium
Interior size:
Â
From 3,735 SqFt
Lot pricing included:
Â
Yes
Valeri Farmhouse Plan is now sold.