PH 7503
99 Hudson
Colgate Center, Jersey City
11S
Galleria on Provost
Powerhouse Arts District, Jersey City
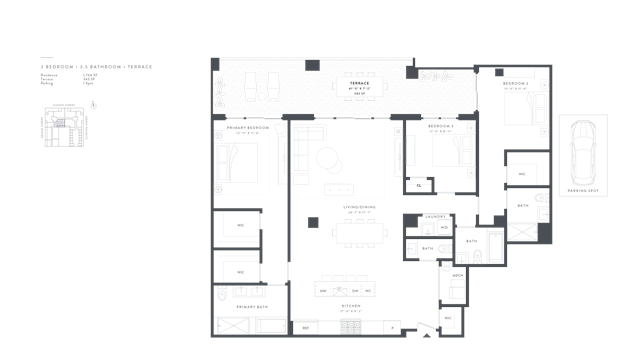
1304
151 Bay Street
10O
PH 7602
155 BAY ST #1304
151 Bay Street at Provost Square