11S
Galleria on Provost
Powerhouse Arts District, Jersey City
PH 7602
99 Hudson
Colgate Center, Jersey City
10O
PH 7503
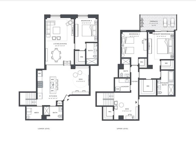
1304
151 Bay Street
155 BAY ST #1304
151 Bay Street at Provost Square