


















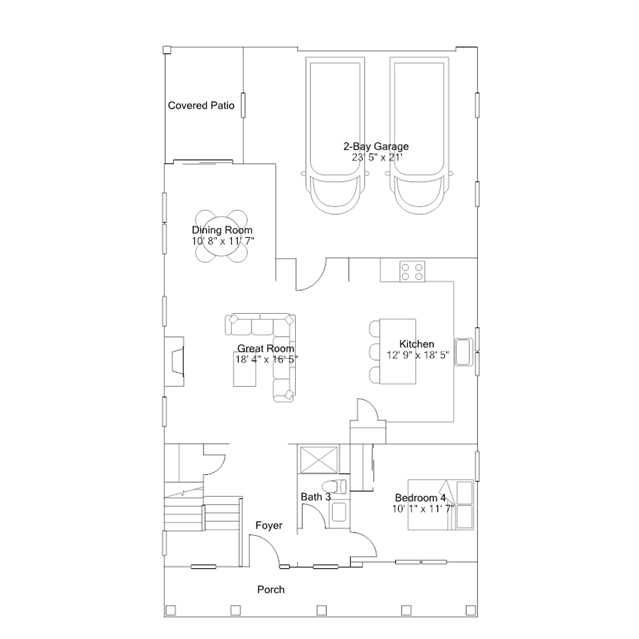
On the first floor of this two-story home, the foyer leads to an open Great Room that shares space with the kitchen and dining area, accessing a covered patio. A nearby bedroom is separate from the upstairs sleeping spaces, ideal for overnight guests. The second level features three more bedrooms, including the luxurious owners suite, and a versatile loft.