











































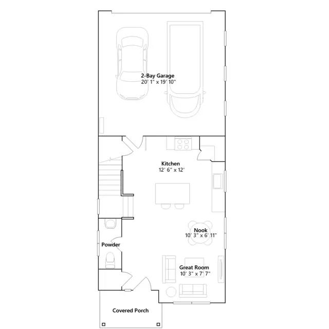
The first level of this two-story home is host to a spacious open floorplan shared between the kitchen, dining room and Great Room. All three bedrooms occupy the second floor, including the luxe owners suite which is made up of a restful bedroom, spa-inspired bathroom and walk-in closet.
Stay informed with Livabl updates on new community details and available inventory.