








































Get additional information including price lists and floor plans.
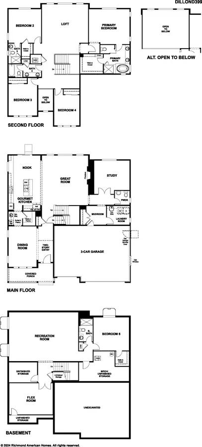
The stunning Dillon II plan opens with an airy two-story entry and an impressive great room. You'll also enjoy a formal dining room, a spacious study and a gourmet kitchen, which boasts a center island and convenient butler's and walk-in pantries. Upstairs, discover four generous bedrooms, including an eye-catching primary suite showcasing a sizable walk-in closet and private bath. This plan may be built with a loft on the second floor. A versatile finished basement rounds out the home, offering a rec room, a flex room and an extra bedroom and bath.
Stay informed with Livabl updates on new community details and available inventory.