New Homes for Sale
Articles
Professionals
Log in
Sign up
Photos 7
Videos 0
Map
Interactive floor plan 0
Virtual 0
Allaire Plan
By
Pulte Homes
|
Harborside at Hudson's Ferry
Community
Available homes
Get updates
Save
Request info
Request info
Community
Available homes
Request info
Get updates
Save
Request info
Harborside at Hudson's Ferry
Get updates
Request info
Sold
Sold
2
2
1
From 2,090
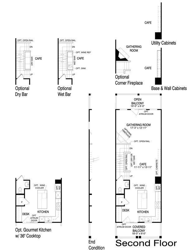
Allaire Plan details
Address:
Highlands, NJ 07732
Plan type:
Two+ Story
Beds:
2
Full baths:
2
Half baths:
1
SqFt:
From 2,090
Ownership:
Fee simple
Interior size:
From 2,090 SqFt
Lot pricing included:
Yes
Allaire Plan is now sold.