New Homes for Sale
Articles
Professionals
Log in
Sign up
Photos 7
Videos 0
Map
Interactive floor plan 0
Virtual 0
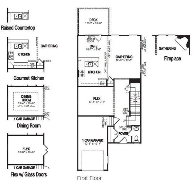
Shire Plan
By
Pulte Homes
   |  Â
The Crossings at Highland Park
Community
Available homes
Get updates
Save
Request info
Request info
Community
Available homes
Request info
Get updates
Save
Request info
The Crossings at Highland Park
Get updates
Request info
Sold
Sold
3
2
1
From 1,878
Shire Plan details
Address:
Â
Highland Park, NJ 08904
Plan type:
Â
Two+ Story
Beds:
Â
3
Full baths:
Â
2
Half baths:
Â
1
SqFt:
Â
From 1,878
Ownership:
Â
Fee simple
Interior size:
Â
From 1,878 SqFt
Lot pricing included:
Â
Yes
Shire Plan is now sold.