






































































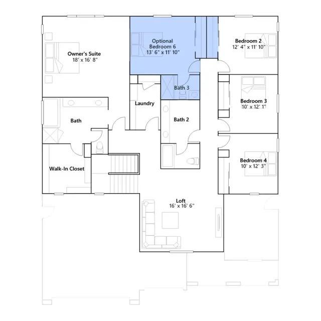
This new two-story Next Gen home features a suite with a separate entrance, living area, kitchenette, bedroom and bathroom, ideal for multigenerational households or residents seeking extra privacy. On the first floor of the main home is an inviting open-concept floorplan shared between the kitchen, living and dining areas. On the second floor is a flexible loft, offering a convenient shared living area easily accessible from four bedrooms, including the owners suite with a full bathroom, walk-in closet and retreat.
Stay informed with Livabl updates on new community details and available inventory.