hero-image-0
hero-image-1
hero-image-2

5109 W Encore Court

Encore at Miller Crossing
Sold
Sold
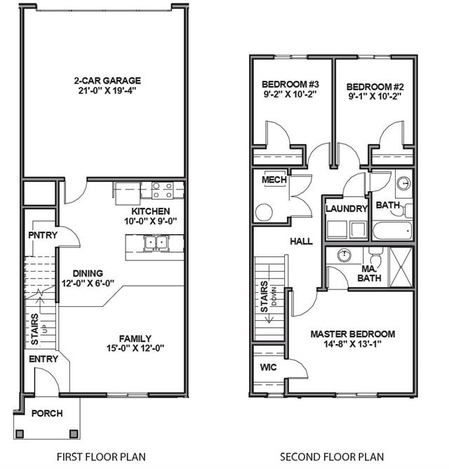
3
2
1,275
5109 W Encore Court details
5109 W Encore Court is now sold.
Check out available communities below.