hero-image-0
hero-image-1
hero-image-2

13212 Woodland Park Rd

Waterview at Woodland Park
Sold
Sold
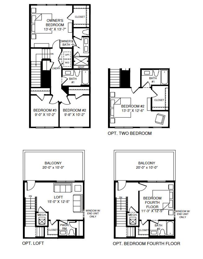
3
2
1
2,358
13212 Woodland Park Rd details
unit-banner-image
unit-banner-image
unit-banner-image
13212 Woodland Park Rd is now sold.
Check out available nearby townhomes below.