New Homes for Sale
Articles
Professionals
Log in
Sign up
Photos 3
Videos 0
Map
Interactive floor plan 0
Virtual 0
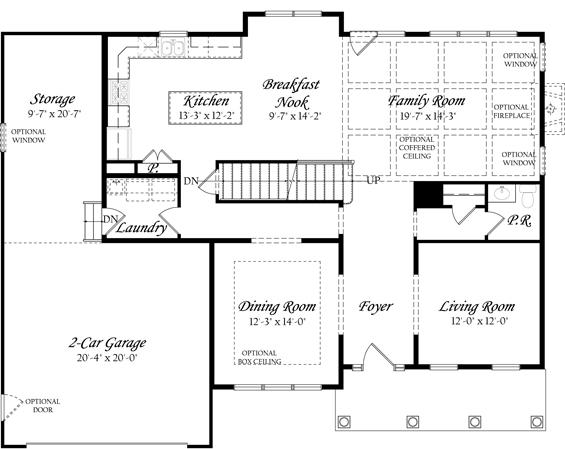
Woodson Plan
By
Evergreene Homes
|
Van Buren Reserve
Community
Available homes
Get updates
Save
Request info
Request info
Community
Available homes
Request info
Get updates
Save
Request info
Van Buren Reserve
Get updates
Request info
Sold
Sold
4
2
1
From 2,725
Woodson Plan details
Address:
Herndon, VA 20170
Plan type:
Detached Two+ Story
Beds:
4
Full baths:
2
Half baths:
1
SqFt:
From 2,725
Ownership:
Fee simple
Interior size:
From 2,725 SqFt
Lot pricing included:
Yes
Woodson Plan is now sold.