




































































Get additional information including price lists and floor plans.
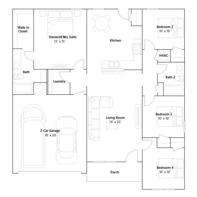
This new home is conveniently laid out on a single floor for maximum comfort and convenience. At its heart stands an open-plan layout connecting a spacious Great Room, peninsula-style kitchen and a lovely dining area. Two secondary bedrooms off the kitchen provide secluded retreats, while the owners suite is situated at the opposite side of the home with an attached bathroom and walk-in closet.
Stay informed with Livabl updates on new community details and available inventory.