


































Get additional information including price lists and floor plans.
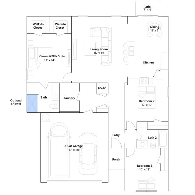
This single-story home features two bedrooms off the entry, leading to a spacious and flexible open-concept layout that combines the kitchen, living and dining areas. The luxurious owners suite is nestled into a private rear corner, offering direct access to a full bathroom and dual walk-in closets.
Stay informed with Livabl updates on new community details and available inventory.