



















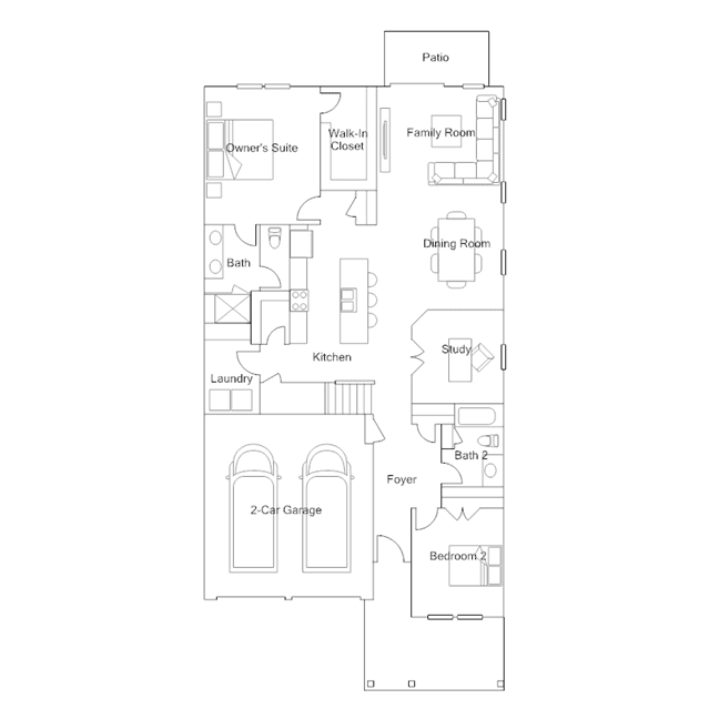
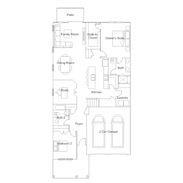
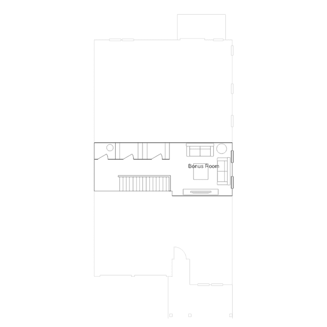
This new attached villa home features a flexible layout and the comfort of single-story living, with a second-floor bonus room to provide additional living space. The front door leads to a foyer with a bedroom and nearby study. Down the hall is the open living area with a patio in the back. Tucked into the corner is the tranquil owners suite with a private full-sized bathroom.