
































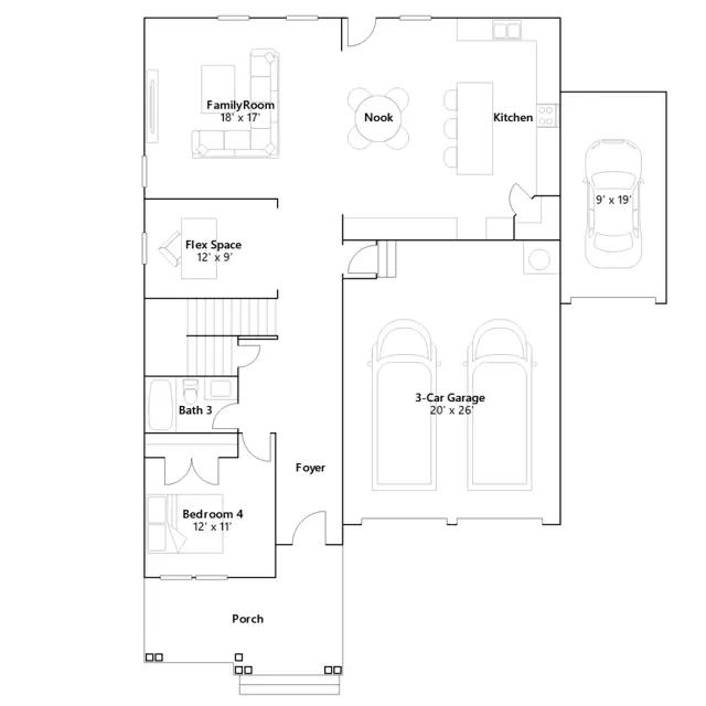
This two-story home is the largest in this collection and offers plenty of space for living, entertaining and working. A first-level bedroom could operate as a space for overnight guests or as a home office, while the Great Room, kitchen and dining nook are arranged in a desirable open floorplan. Three bedrooms and a loft can be found on the second floor.