hero-image-0
hero-image-1
hero-image-2

3173 Mantua Village Ave.

Toll Brothers at Inspirada - M...
Sold
Sold
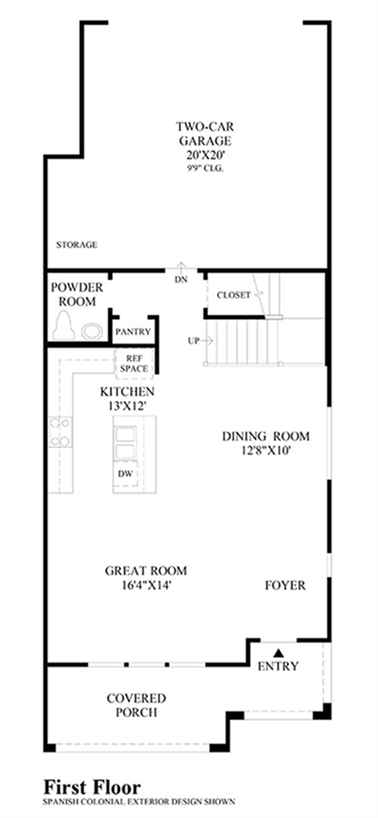
3
2
1
1,800
3173 Mantua Village Ave. details
unit-banner-image
unit-banner-image
unit-banner-image
3173 Mantua Village Ave. is now sold.
Check out available nearby townhomes below.