











































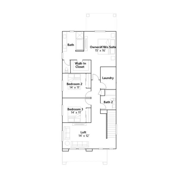
This new two-story home features a spacious and modern layout. A bedroom and full bathroom are located off the foyer, leading to an open-concept floorplan with convenient access to a covered patio. Upstairs is a versatile loft offering a shared living space on the second level, along with three bedrooms including the luxe ownerss suite with an en-suite bathroom and walk-in closet.
Stay informed with Livabl updates on new community details and available inventory.