


































Images coming soon
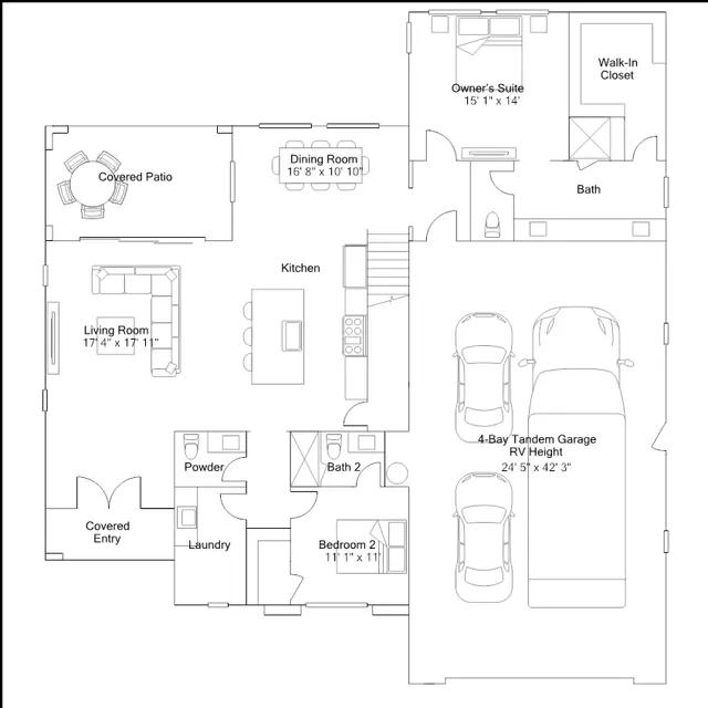
Offering desirable features like an RV-height garage, this new two-story home is ready for modern lifestyles. On the first level, an inviting open-concept layout seamlessly combines the kitchen, living and dining areas. A secondary bedroom can be found near the entry, and the luxurious owners suite is tucked away to the back of the home for enhanced comfort and privacy. Two additional secondary bedrooms and a versatile loft make up the second floor.
Stay informed with Livabl updates on new community details and available inventory.