






























































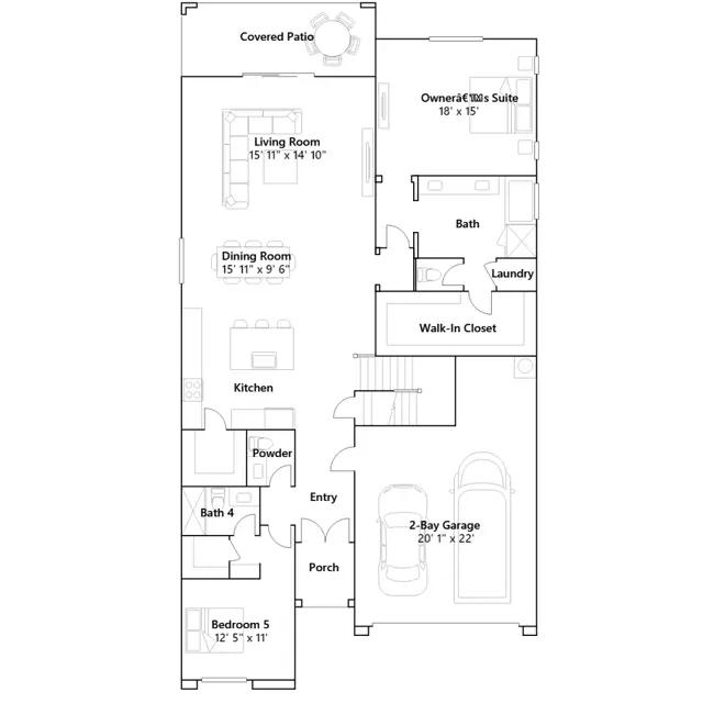
The living room, kitchen and dining room share a spacious open floorplan on the first floor of this two-story home, with sliding glass doors that lead to the covered patio. At the back of the home is the luxe owners suite, while a secondary bedroom is situated off the entry. A loft provides additional shared living space upstairs, complemented by a deck, with three more bedrooms down the hall.