































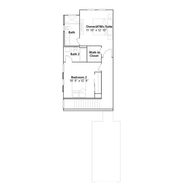
This new two-story townhome is designed with modern lifestyles in mind. The first floor is host to an inviting open-concept layout that combines a modern kitchen and comfortable living room for effortless entertaining, multitasking and everyday living. Two bedrooms comprise the second floor, including the lavish owners suite with a full bathroom and walk-in closet.
Stay informed with Livabl updates on new community details and available inventory.