


























Get additional information including price lists and floor plans.
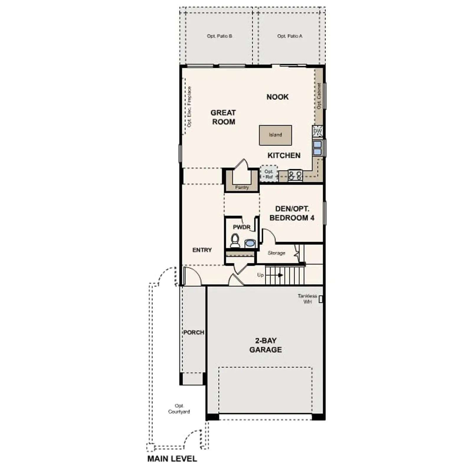
Residence 2114 at Modena I boasts a versatile main-floor layout with an abundance of flexible living and entertaining space. A secluded den is located near the front entrance, providing a quiet space for work and relaxation. Just beyond the foyer, youll find a well-appointed kitchenfeaturing a breakfast nook, a walk-in pantry, a large center island and a wide-open great room. Upstairs, there are two gracious secondary bedrooms, a hall bath, an expansive loft and a convenient laundry room. Completing the upper level is a lavish owners suiteshowcasing a roomy walk-in closet and a deluxe bath with dual vanities and a walk-in shower. Options may include: -Expanded great room/nook -Bedroom 4 in lieu of den -Super loft -Bedroom 5 & 6
Stay informed with Livabl updates on new community details and available inventory.