























































Get additional information including price lists and floor plans.
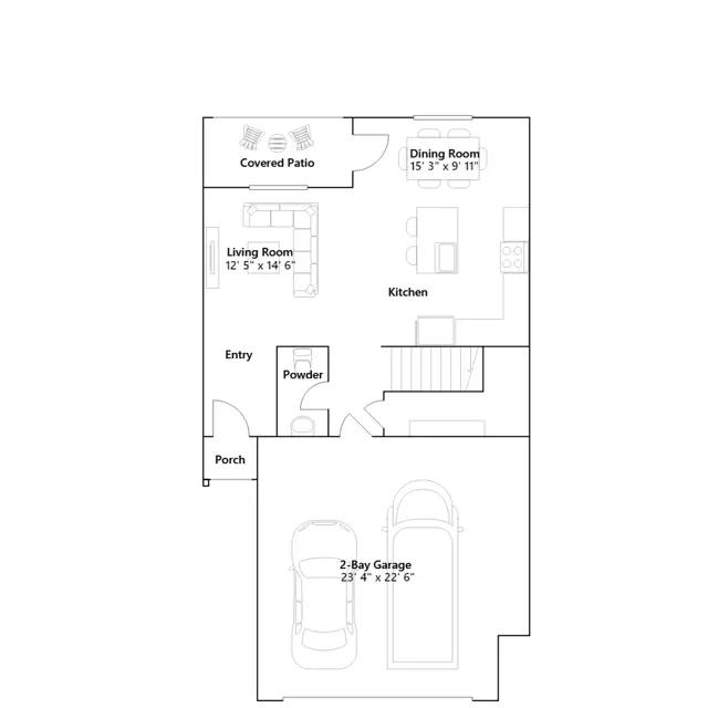
This two-story home features a spacious open floorplan on the first level, promoting seamless transition between the kitchen, living and dining rooms. Access to the covered patio makes indoor-outdoor living and entertaining simple. Upstairs, a loft provides additional shared living space and features sliding glass doors that lead to a covered deck. Two owners suites are located off the loft, each featuring an en-suite bathroom and walk-in closet.
Stay informed with Livabl updates on new community details and available inventory.