










































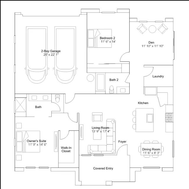
This single-story home is the largest plan in this collection. The open space living room, dining room and kitchen flows into a flexible den as well as a covered patio for outdoor living. Tucked on the other side of the main living area for convenience is the owners suite, while an extra bedroom for overnight guests is at the back.