










































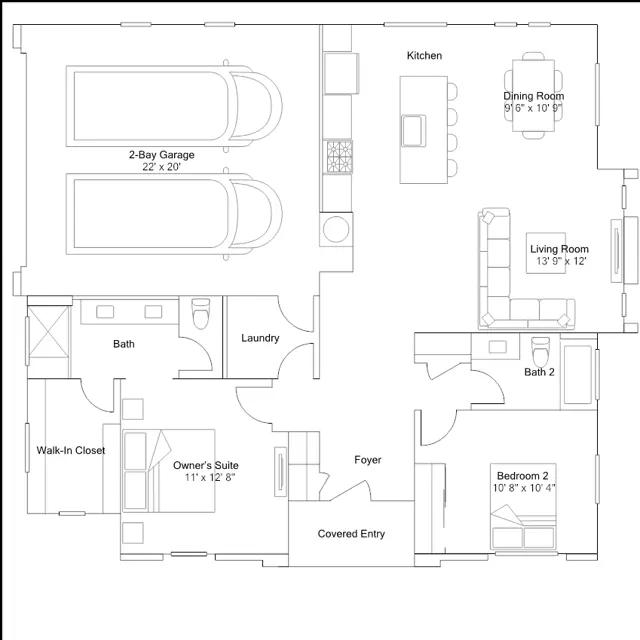
This contemporary home embraces an appealing open plan that unites the dining room, living room and kitchen ideal for gathering with loved ones. The front of the home contains a guest room and adjacent bathroom directly across from the spacious owners suite with an attached bathroom.