Plan Middleton
Davis Ranch: 50ft. lots
West San Antonio, San Antonio Northwest
Plan Surrey
Plan Cambridge
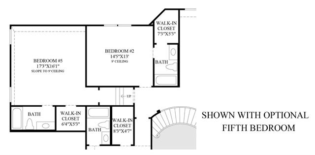
The Sequoia A
Bricewood
West San Antonio, San Antonio
Plan Davenport
Plan Amberley
Plan Kingston
The Murray I