hero-image-0
hero-image-1
hero-image-2

23780 N Muirfield Drive

Wentworth of Kildeer
Sold
Sold
2
2
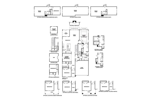
1
2,155
23780 N Muirfield Drive details
23780 N Muirfield Drive is now sold.
Check out available communities below.