


































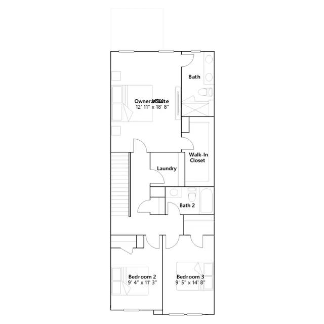
The first floor of this two-story townhome is host to an inviting open floorplan that seamlessly connects a chef-inspired kitchen, spacious Great Room and comfortable dining area. Three bedrooms can be found upstairs, including the luxe owners suite, which features a restful bedroom, en-suite bathroom and walk-in closet.
Stay informed with Livabl updates on new community details and available inventory.