































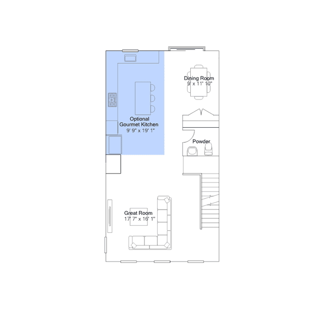
This new townhome design presents three floors of dedicated living and entertainment space. On the entry level is a sprawling recreation room to cater to versatile needs, while the main living level is a breezy and open layout shared among the Great Room, kitchen and dining room. All three bedrooms reside on the upper floor to provide family members maximum privacy, including the owners suite with an attached bathroom.