

















































Get additional information including price lists and floor plans.
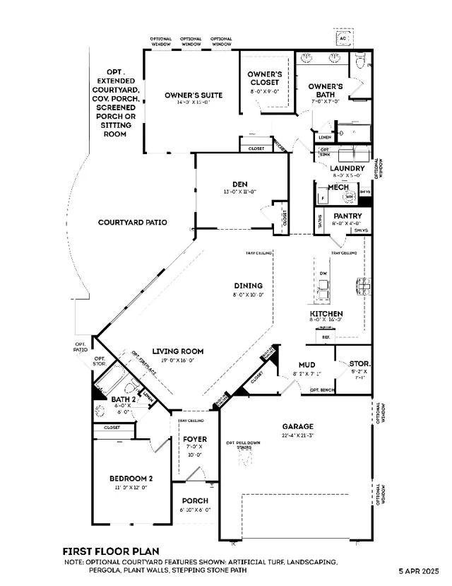
Looking for a spacious home that can comfortably accommodate your oversized furniture and host your family and friends? The Promenade is the ideal option - This expertly designed house offers ample space for all your needs, along with a range of features to help you relax and recharge. Here are some of the highlights: Optional gourmet kitchen with center island and walk-in pantry Secluded den and private courtyard for peaceful moments Spacious owner's suite and bath for ultimate relaxation Mudroom with additional storage space for easy organization For those who believe that the home is where the heart is, look no further than the Promenade. Come see it for yourself and experience the best of modern living.
Stay informed with Livabl updates on new community details and available inventory.