
















































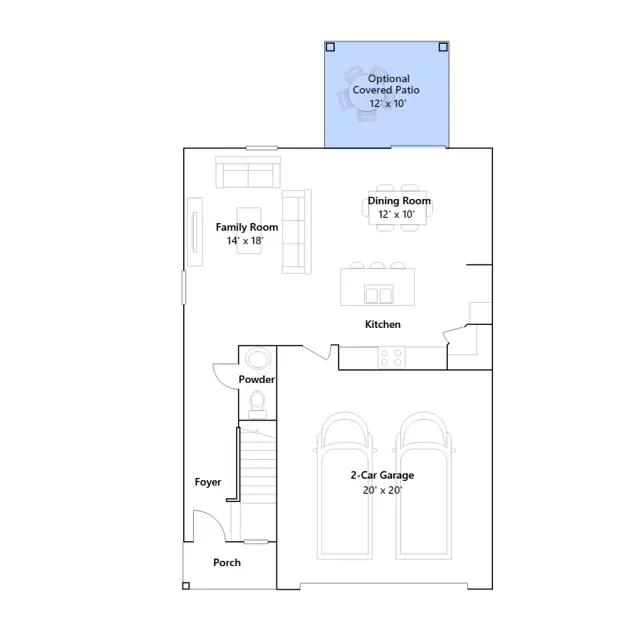
This new two-story home design combines style and convenience. The first floor features an open floorplan connecting the family room, dining room and kitchen, which has a large center island. A patio enhances outdoor enjoyment. Upstairs are a centrally situated loft, three secondary bedrooms and an owners suite with a luxe bathroom and a large walk-in closet.
Stay informed with Livabl updates on new community details and available inventory.