























































Get additional information including price lists and floor plans.
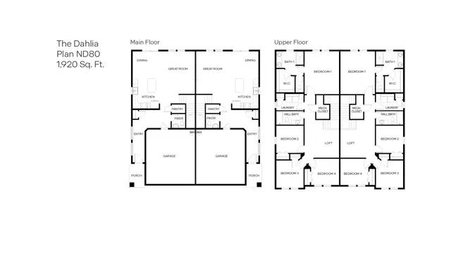
Welcome to the Dahlia floor plan at Avery Terrace, a new home community in Happy Valley, Oregon. This 1,880 square foot floor plan features 4 bedrooms plus a loft, 2.5 bathrooms, and an attached 2-car garage. This new home also has a Smart Home package and a 10-year limited warranty. Manage your home effortlessly from everywhere, ensuring peace of mind and convenience at your fingertips. As you walk up through the elongated covered porch and enter the home, a coat closet and powder bathroom are there to greet you at the entrance for easy guest access. Moving further into the home, youll find a fresh and inviting open concept living space that includes the great room, dining room, and kitchen. The sophisticatedly crafted kitchen includes solid quartz countertops, shaker-style cabinets, stainless-steel appliances, and a spacious walk-in pantry adding style and tas...
Stay informed with Livabl updates on new community details and available inventory.