
















































Get additional information including price lists and floor plans.
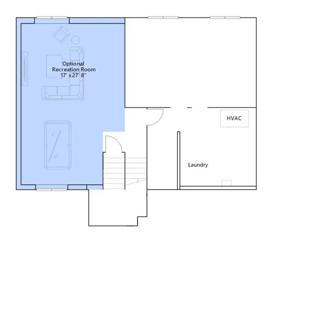
This new split-level home delivers low-maintenance living without giving up modern comfort. Beyond the foyer is a spacious living room for shared entertainment space, which connects to a fully equipped kitchen and a dining area with outdoor access. On the opposite side of the layout are two secondary bedrooms, a convenient full-sized bathroom and a tranquil owners suite, complete with an en-suite bathroom. An enviable three-car garage provides versatile storage room. An optional finished basement offers add-ons like a recreation room and two additional bedrooms.
Stay informed with Livabl updates on new community details and available inventory.